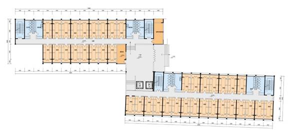
bt365体育官网沙河校区一期(3)学生宿舍C6-14、C6-15工程,位于北京市昌平区沙河高教园区东北角,bt365体育官网沙河校区C6地块,已建成的一期(1)阶段学生宿舍区南侧。一期(3)学生宿舍C6-14、C6-15工程总建筑面积11270 m2,地上建筑面积9660m2,地下建筑面积1610 m2,建筑高度23.8m,地下一层,地上六层,260间宿舍,能满足1040人住宿。
地下一层设置集中的淋浴间、热水设备间,学生学习室和娱乐室

一期(3)学生宿舍C6-14、C6-15工程由中广电广播电影电视设计研究院设计,北京中建协工程咨询有限公司监理,北京市建平工程勘察有限责任公司勘察,北京城建六建设集团有限公司施工,质量监督单位为北京市昌平区建设工程质量监督站。工期计划自2013年8月1日开工至2014年7月31日竣工。
[编辑]:孙颖